H44H-16/25C鑄鋼旋啟式止回閥概述:
H44H鑄鋼旋啟式止回閥也叫旋啟式法蘭止回閥,是靠管路中介質本身的流動產生的力而自動開啟和關閉的,屬于一種自動閥門。旋啟式止回閥的采用內裝搖臂旋啟式結構,閥門的所有啟閉件都裝于閥體內部,不穿透閥體,除了中法蘭部位用密封墊片和密封環外,整體沒有外漏點,杜絕閥門外泄的可能。旋啟式止回閥搖臂和閥瓣連接處采用球面連接的結構,使得閥瓣在360度范圍內有一定的自由度,有適當的微量位置補償。
H44H-16/25C鑄鋼旋啟式止回閥結構與特點:
1、選材考究,符合國內、外相關標準,材料的全面質量高。
2、密封副配對先進合理,閥瓣、閥座密封面采用鐵基合金或司太立(Stellite)鈷基硬質合金堆焊面成,耐磨、耐高溫、耐腐蝕、抗擦傷性能好,使用壽命長。
3、產品按國家標準GB/T12235設計制造。
4、可采用各種配管法蘭標準及法蘭密封型式,滿足各種工程需要及用戶要求。
5、閥體材料品種齊全,墊片可根據實際工況或用戶要求合理選配,能適用于各種壓力、溫度及介質工況。
可按用戶要求設計制造不同結構形式和連接形式的止回閥,為各種設備配套使用
H44H-16/25C鑄鋼旋啟式止回閥適用范圍:
城建、化工、冶金、石油、制藥、食品、飲料、環保,選用于公稱壓力PN1.6~6.4MPa,工作溫度-29~550℃的石油、化工、火力電站等各種工況的管路上。適用介質為:水、油品、蒸汽等。
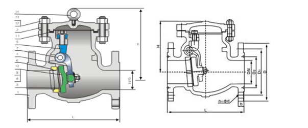
H44H-16/25C鑄鋼旋啟式止回閥結構圖:

H44H-16/25C鑄鋼旋啟式止回閥采用標準:
結構形式 |
螺柱閥蓋升降式止回閥 |
|
設計依據 |
GB |
API |
設計標準 |
GB/T 12235 |
BS1868 |
結構長度 |
GB/T 12221 |
ASME B16.10 |
連接法蘭 |
JB/T 79-94 |
ASME B16.5 |
試驗和檢驗 |
JB/T9092 |
API 598 |
注:閥門連接法蘭及對焊端尺寸可根據用戶要求設計制造。
H44H-16/25C鑄鋼旋啟式止回閥性能參數:
型號 |
H44H-16C~250 |
|
工作壓力(MPa) |
1.6~25 |
|
適用溫度(℃) |
≤425 |
|
適用介質 |
水、蒸汽、油品 |
|
材料 |
閥體、閥蓋、閥瓣 |
碳素鋼 |
密封面 |
碳鋼堆焊鐵基合金 |
|
H44H-16/25C鑄鋼旋啟式止回閥主要零件材料:

H44H-16/25C鑄鋼旋啟式止回閥連接尺寸表:
型號 |
公稱壓力 PN (MPa) |
公稱通徑 DN (mm) |
尺寸(mm) |
重量 (Kg) |
|||||||
L |
D |
D1 |
D2 |
b |
Z-d |
D3 |
H |
||||
H44H-16C |
1.6 |
40 |
200 |
145 |
110 |
88 |
20 |
4-18 |
145 |
103 |
15.2 |
50 |
230 |
160 |
125 |
102 |
20 |
4-18 |
185 |
160 |
21.3 |
||
65 |
290 |
180 |
145 |
122 |
22 |
8-18 |
215 |
175 |
28.1 |
||
80 |
310 |
195 |
160 |
133 |
22 |
8-18 |
235 |
185 |
37.6 |
||
100 |
350 |
230 |
180 |
158 |
24 |
8-23 |
270 |
220 |
56.7 |
||
125 |
400 |
270 |
210 |
184 |
28 |
8-25 |
340 |
248 |
91 |
||
150 |
480 |
300 |
240 |
212 |
30 |
8-25 |
375 |
270 |
129 |
||
200 |
550 |
360 |
295 |
268 |
34 |
12-25 |
350 |
210 |
|||
250 |
650 |
425 |
355 |
320 |
36 |
12-30 |
515 |
415 |
290 |
||
300 |
750 |
485 |
410 |
370 |
40 |
16-30 |
320 |
||||
350 |
850 |
550 |
470 |
430 |
44 |
16-34 |
420 |
||||
型號 |
公稱壓力 PN (MPa) |
公稱通徑 DN (mm) |
尺寸(mm) |
重量 (Kg) |
|||||||
L |
D |
D1 |
D2 |
b |
Z-d |
D3 |
H |
||||
H44H-25C |
2.5 |
40 |
200 |
145 |
110 |
88 |
20 |
4-18 |
145 |
103 |
15.2 |
50 |
230 |
160 |
125 |
102 |
20 |
4-18 |
185 |
160 |
21.3 |
||
65 |
290 |
180 |
145 |
122 |
22 |
8-18 |
215 |
175 |
28.1 |
||
80 |
310 |
195 |
160 |
133 |
22 |
8-18 |
235 |
185 |
37.6 |
||
100 |
350 |
230 |
180 |
158 |
24 |
8-23 |
270 |
220 |
56.7 |
||
125 |
400 |
270 |
210 |
184 |
28 |
8-25 |
340 |
248 |
91 |
||
150 |
480 |
300 |
240 |
212 |
30 |
8-25 |
375 |
270 |
129 |
||
200 |
550 |
360 |
295 |
268 |
34 |
12-25 |
435 |
350 |
210 |
||
250 |
650 |
425 |
355 |
320 |
36 |
12-30 |
515 |
415 |
290 |
||
300 |
750 |
485 |
410 |
370 |
40 |
16-30 |
|||||